段付リングゲージ加工実績― 高精度内径研削による同軸度保証 ―

■ 加工仕様
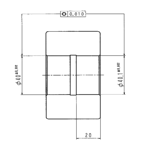
・内径a:φ40.000 ±0.002
・内径b:φ40.100 ±0.002
・同軸度:0.010
本案件は、段付構造を持つリングゲージの高精度加工です。
2段の内径それぞれに±2μmの公差が要求され、さらに両内径間の同軸度0.010という厳しい幾何公差が指定されています。
■ 加工内容
仕上げは高精度内径研削加工にて対応。
本製品は、片側から通しで研削を行う工程設計とすることで、芯ブレの要因を最小限に抑制。
段部ごとに工程を分けるのではなく、基準を一貫させた加工方法を採用することで、両内径の芯を“ビシッ”と合わせています。
段付形状のリングゲージでは、
・チャッキングのわずかなズレ
・砥石の摩耗変化
・加工時の熱変位
などが同軸度不良の要因になります。
本件では、それらを考慮した加工順序と仕上げ条件を設定し、安定した精度を確保しました。
■ 段付リングゲージの精度管理
リングゲージは測定基準となる治具であるため、寸法精度だけでなく、
・真円度
・円筒度
・同軸度
といった幾何公差の確実な管理が求められます。
弊社では、±2μm公差の内径研削、同軸度0.010の保証といった精度領域も、これまで培ってきたゲージ加工技術と内径研削ノウハウにより対応可能です。
■ 高精度研削加工でお困りの方へ
段付形状や幾何公差付き部品など、他社で難しいと言われた案件でも、まずはご相談ください。
大古精機は、ゲージ製作と精密研削加工で培った技術力でお応えします。
大古精機はユーザー様独自規格ねじゲージを一個からでも製作
WEB-OKS(大古精機)ではでは、ユーザー様独自規格のねじゲージの製作や、市販されていない規格や径(サイズ)、ピッチの特殊なねじゲージの製作を得意としております。
お困りの際は、ぜひお気軽にお問い合わせください。
ご相談・見積依頼

精密研磨加工・ラップ加工
大古精機の精密加工/測定技術を活かし、精密研磨加工、ラップ加工を請け負います。
